Vivir en Bordo 59, Valle Gómez, Venustiano Carranza, CDMX tiene diversas ventajas para quienes buscan accesibilidad, conectividad y una ubicación estratégica en la ciudad. Su cercanía al Centro Histórico y su acceso a vías principales como Circuito Interior, Eje 1 Norte y Av. Congreso de la Unión facilitan la movilidad hacia distintas zonas. Además, cuenta con varias opciones de transporte público, incluyendo las estaciones Valle Gómez (Línea 5 del Metro), Morelos (Líneas 4 y B) y diversas rutas de RTP, trolebús y microbuses.
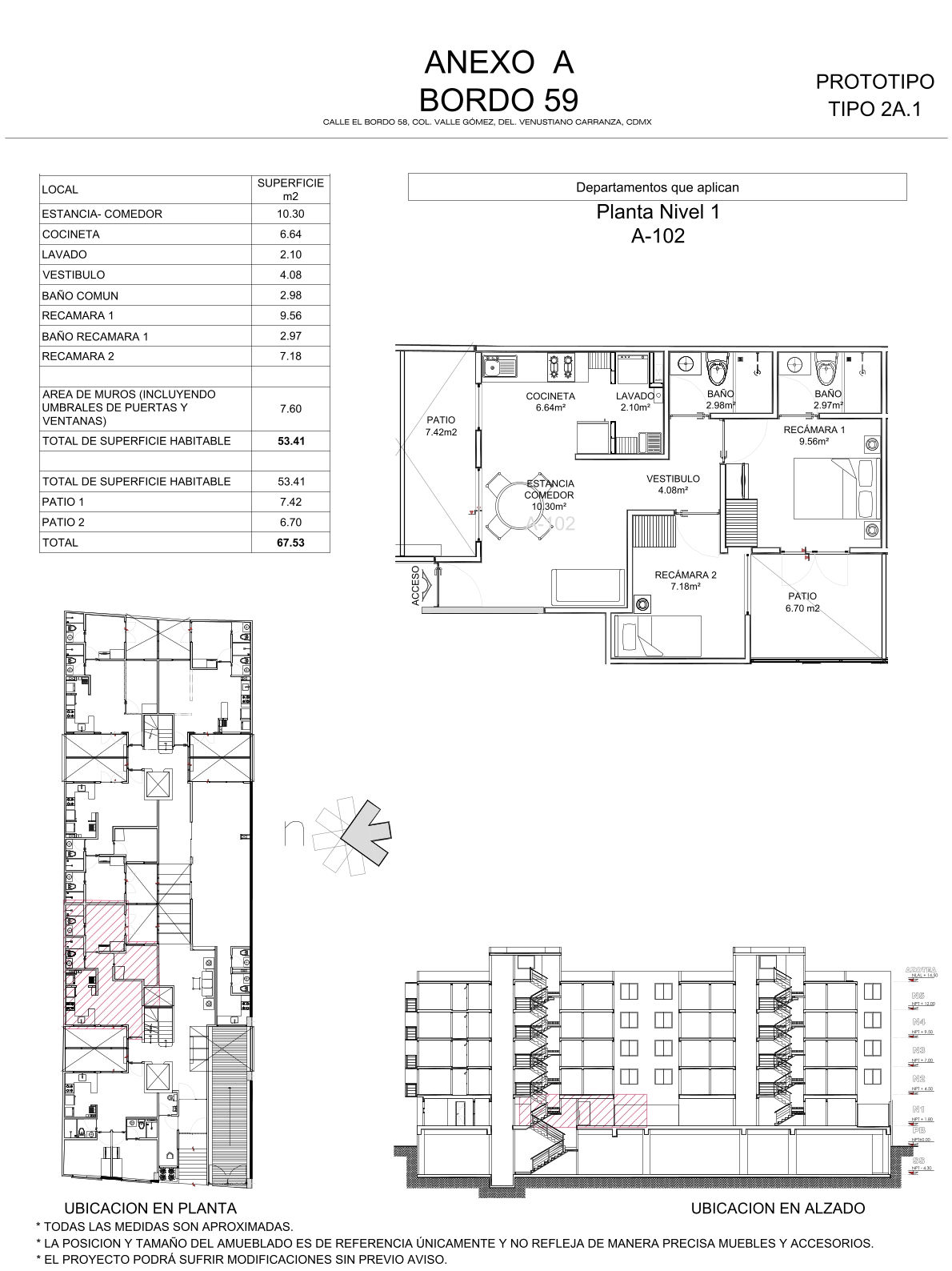
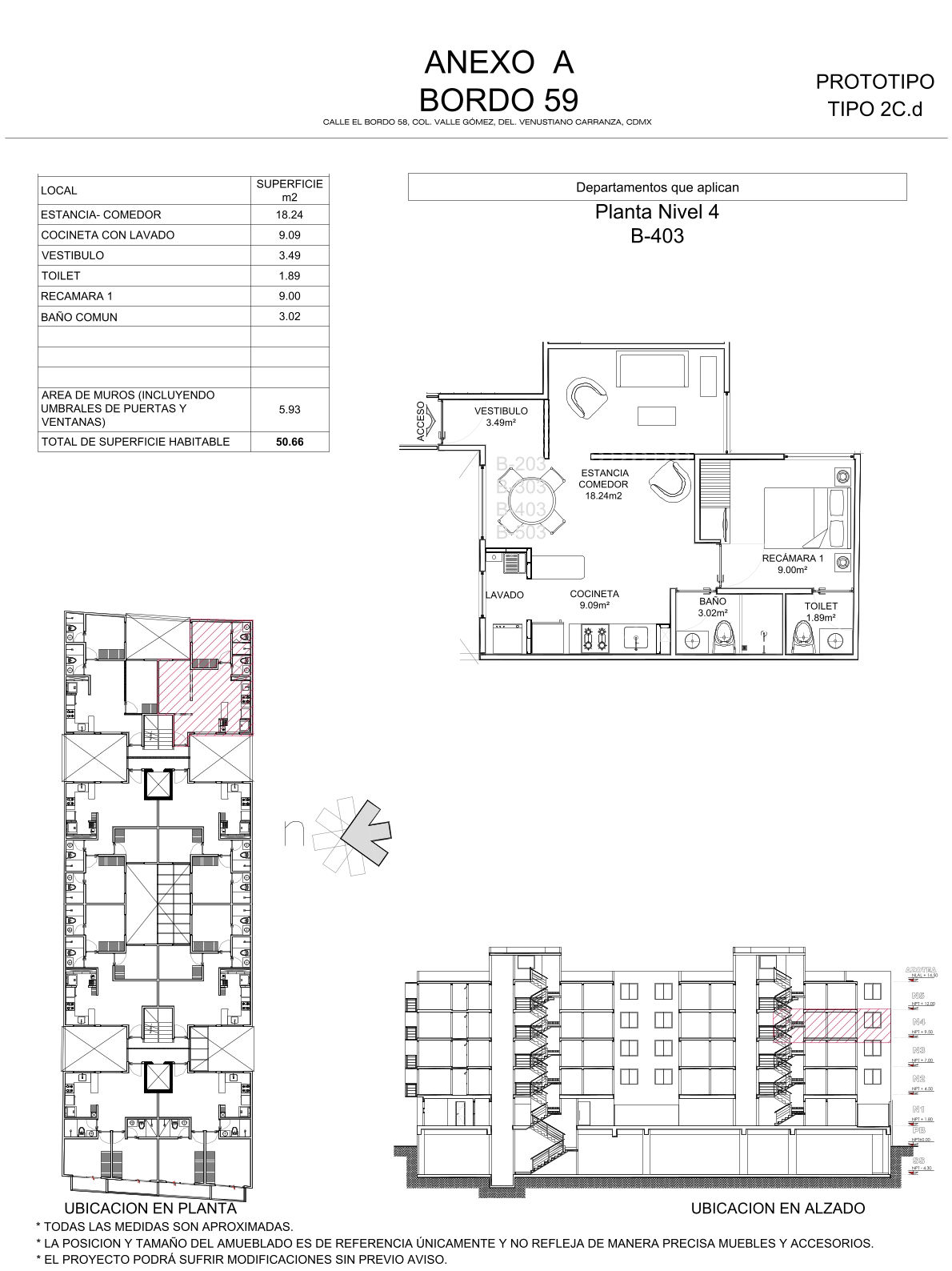
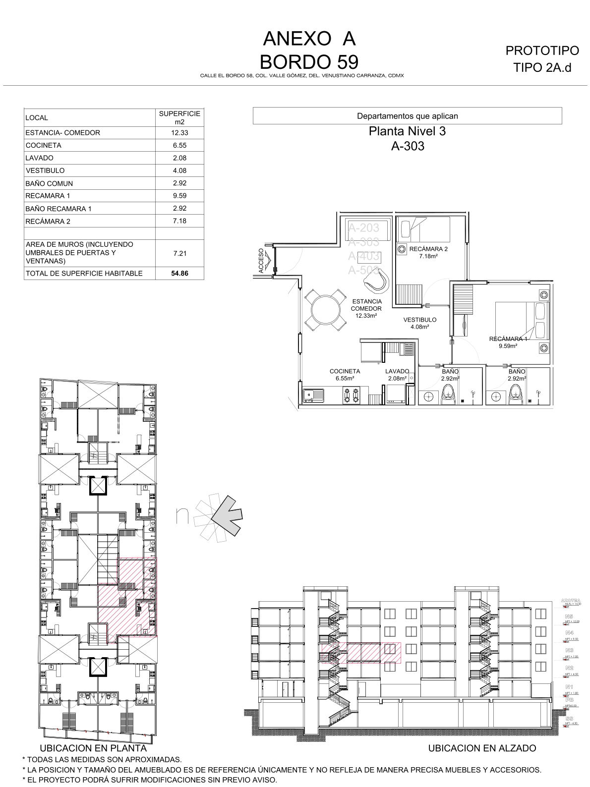
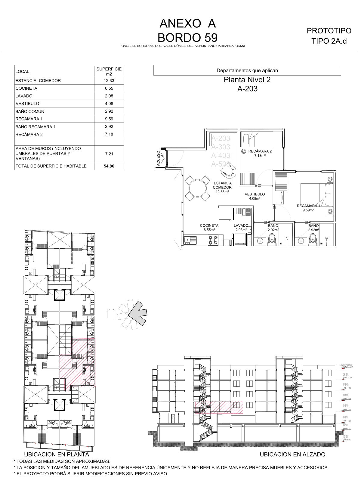
Todas las fotos son ilustrativas sin valor jurídico*


